
INFORMATION ANGÅENDE PROJEKT TJAMSTAN SÖDRA
Nedan text redogör för planprocessens olika steg, finansiering samt förutsättningar för genomförande i enlighet med gällande plan- och bygglagstiftning.
Vad är en Översiktsplan?
Översiktsplanen - PBL kunskapsbanken - Boverket
Översiktsplan för Malå kommun inklusive fördjupning för Malå centralort antogs av kommunfullmäktige 2020. Plan- och bygglagen (2010:900) reglerar att alla kommuner ska ha en aktuell översiktsplan som omfattar hela kommunens yta. Översiktsplanen ska ange inriktningen för den långsiktiga utvecklingen av den fysiska miljön och mark- och vattenanvändningen i kommunen. Malå kommuns översiktsplan utgör kommunens övergripande strategiska dokument.
Exempel aktuellt kopplat till projekt Tjamstan Södra: sid 17 3.1.1 Bostäder Nya områden/utvecklingsområden
TJAMSTAN
Söder om Tjamstanberget ska villor och radhus upp till två våningar kunna uppföras. Bebyggelsen ska kunna användas för fritids- och permanentboende och för uthyrning. Ny bebyggelse ska regleras i detaljplan. Markens lämplighet och bullersituationen, samt eventuella risker kopplat till farligt gods ska utredas vid framtida planering. Vid exploatering av området ska gång- och cykelväg anläggas som ansluter till kommunens gång- och cykelvägnät.
Vad är en detaljplan?
Läs mer: Vad är en detaljplan - PBL kunskapsbanken - Boverket
Inom kommunen kan användningen av mark- och vattenområden samt bebyggelse och byggnadsverk regleras med detaljplaner eller områdesbestämmelser. Både detaljplaner och områdesbestämmelser får rättsverkan. Den bedömning som görs i en detaljplan ger ramarna för prövningen av framtida bygglovsärenden. Därmed blir lovhanteringen enklare.
Processen börjar normalt med en ansökan om planbesked. Beställare kan vara privatperson, näringar, kommun eller stat. Miljö- och byggnämnden beslutar då efter en första bedömning om planbesked och arbetet med detaljplanen påbörjas. När undersökningar och tidiga samråd är genomförda samt att samrådshandlingar är framtagna ställer Miljö- och byggnämnden i ett första steg ut förslaget på samråd.
Bild nedan visar ett normalt planförfarande och dess olika faser.
Kommunen har flera olika roller inom plan- och bygglagstiftningen, bland annat som myndighet och fastighetsägare.
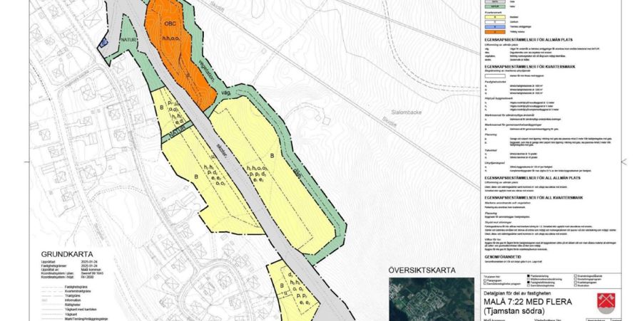
Detaljplan Tjamstan södra
Syftet med detaljplanen är att skapa förutsättningar för uppförande av bostäder, centrum och tillfällig vistelse i anslutning till befintliga skidanläggningen Tjamstabacken. Detaljplanen möjliggör även för utbyggnad av en ny gata som ansluter mot Hotellgatan, Backgatan och Helmers Backe. Vidare är syftet med detaljplanen att värna områdets naturliga topografi, säkerställa avstånd till intilliggande värdefull naturmiljö och säkerställa omhändertagande av dagvatten.
Planförslaget som tagits fram är anpassat efter de förutsättningar och utredningar som är genomförda och kan komma att ändras under processen.
Antagande av en detaljplan medför inte automatiskt att planen ska eller kommer att genomföras. Det som planen ger är en förutsättning och möjlighet till att området kan bebyggas och då endast om detaljplanens bestämmelser följs.
I genomförandebeskrivningen som återfinns i planbeskrivningen till detaljplanen styrs under vilka former och hur området kan exploateras.
Detta innebär för genomförandet, om detaljplanen Tjamstan södra beslutas att antas, har kommunen som fastighetsägare kontroll över alla ingående förutsättningar.
Exempel från planbeskrivningen:
” Under genomförandetiden har ”fastighetsägare” garanterad rätt att få bygga i enlighet med planen. Detaljplanen fortsätter att gälla även efter genomförandetidens utgång men kan då ändras eller upphävas utan att fastighetsägarna kan ställa anspråk på ersättning för förlorad byggrätt.”
”Kommunen avser ingå markanvisningsavtal med exploatör för att säkerställa genomförandet av detaljplanen. Avtalet avser reglera bland annat markköp, fastighetsreglering, ledningsåtgärder, finansiering och ansvarsfördelning, utförande av anläggningar på både kvartersmark och allmän plats samt samordning av utbyggnaden”
Kommunen har i dagsläget inget färdigt markanvisningsavtal men avser att ta fram ett avtal under processen. Syftet med anvisningsavtalet är att ytterligare reglera ansvarsfördelning och utförande av eventuell exploatör.
Läs mer om beslutsprocessen projekt Tjamstan södra
Läs mer om pågående samråd av detaljplan för Tjamstan södra
Läs mer om medborgardialogen 20250325
Hur har arbetet med projekt Tjamstan Södra finansierats fram till idag?
Inom ramen för projektet har ex. naturvärdesinventering, dagvatten/va-utredning och framtagandet av planhandlingar avropats konsult samt information och marknadsföring.
Finansiering Malå kommun: ca 180 000kr
Finansiering externa medel: ca 335 000kr
När detaljplan godkänns avser Malå kommun att söka Boverkets bidrag för småhusbyggande, 19 tomter enligt samrådsförslag á 25000kr, totalt 475 000kr. Läs mer: Ökat småhusbyggande och omvandlingsåtgärder - Boverket
Inom ramen för Handlingsplan bygdemedel 2024 framgår: ”År 2024 avsätts 200 000 kronor till finansiering infrastrukturutredning Tjamstan Södra enligt utvecklingsplan Tjamstan etapp 3.” Dessa medel har inte använts för projekt Tjamstan Södra.